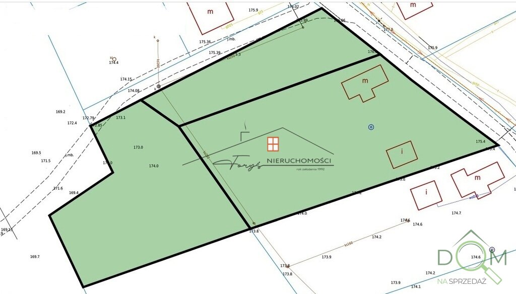
Przedmiotem sprzedaży jest nieruchomość składająca się z trzech przyległych działek o łącznej powierzchni 48,76ar, położona w PIGANACH, gmina Sieniawa, powiat przeworski, województwo podkarpackie.
Działka usytuowana jest obok zabudowy domów jednorodzinnych. Brak miejscowego planu zagospodarowania przestrzennego. W studium uwarunkowań i kierunków zagospodarowania przestrzennego, działka oznaczona jako obszar zabudowy mieszkaniowej jednorodzinnej.
Działka w części od drogi równinna w drugiej części lekko pochylona, w kształcie zbliżonym do prostokąta, o szerokości około 57m i długości od około 82m do 114m.
Zgodnie z mapą zasadniczą uzbrojenie: kanalizacja na działce, pozostałe media w drodze na działkach sąsiednich zabudowanych.
Dojazd do nieruchomości drogą gminną asfaltową.
Skontaktuj się z nami, jeśli jesteś zainteresowany\a. Udzielimy wszelkich informacji i umówimy się na pokazanie nieruchomości.
"Treść niniejszego ogłoszenia nie stanowi oferty handlowej w rozumieniu Kodeksu Cywilnego. Treść ma charakter informacyjny i zalecamy ich osobistą weryfikację. Opis oferty opracowano na podstawie informacji uzyskanych od właściciela nieruchomości, dokumentów oraz wizji lokalnej"
Budujmy tę stronę razem. Twoja opinia jest dla nas ważna.
Wypełnij ankietę
Wybierz sposób wyszukiwania
Rysowanie na mapie
Narysuj obszar na mapie, w którym chcesz szukać nieruchomości
Szukanie w promieniu
Szukaj w określonym promieniu od wskazanego adresu
Szukanie po adresie
Wpisz nazwę miejscowości, dzielnicy lub ulicy
Szukanie na mapie
Przeglądaj mapę z wyświetlonymi ofertami nieruchomości
🍪 Zarządzanie plikami cookies
Ta strona używa plików cookies w celu zapewnienia prawidłowego działania serwisu, analizy ruchu i personalizacji treści.
Możesz zarządzać swoimi preferencjami lub zaakceptować wszystkie cookies.
Dowiedz się więcej w Polityce Prywatności.