Biuro Nieruchomości PROPERTY prezentuje Państwu na sprzedaż wyjątkowy dom jednorodzinny w stanie surowym otwartym (w trakcie budowy) o powierzchni 261 m², realizowany w oparciu o projekt wykonywany na indywidualne zamówienie. Budynek wyróżnia się nowoczesną, minimalistyczną bryłą z płaskim dachem oraz dużymi przeszkleniami, które nadają całości reprezentacyjny charakter, zapewniają doskonałe doświetlenie wnętrz i efekt „otwartej przestrzeni”.
To propozycja dla osób, które chcą stworzyć dom o ponadprzeciętnym standardzie wykończenia — z wyraźnym naciskiem na architekturę, światło i komfort. Na obecnym etapie budowy możliwe są zmiany w układzie pomieszczeń, co pozwala dopasować funkcję domu do własnych potrzeb (np. powiększenie garderoby, wydzielenie strefy relaksu, dodatkowy pokój gościnny, biblioteka).
Działka i infrastruktura działka: 11,32 ar – płaska, narożna, dająca duże możliwości aranżacji ogrodu i tarasu
bezpośredni dostęp do drogi gminnej
pełne uzbrojenie: prąd, gaz, woda, kanalizacja
Lokalizacja
Nieruchomość położona w miejscowości Straszęcin – w miejscu, które łączy spokój z wygodnym dojazdem:
blisko węzła autostrady A4 – Dębica Zachód
szybka komunikacja w kierunku Dębicy i okolic
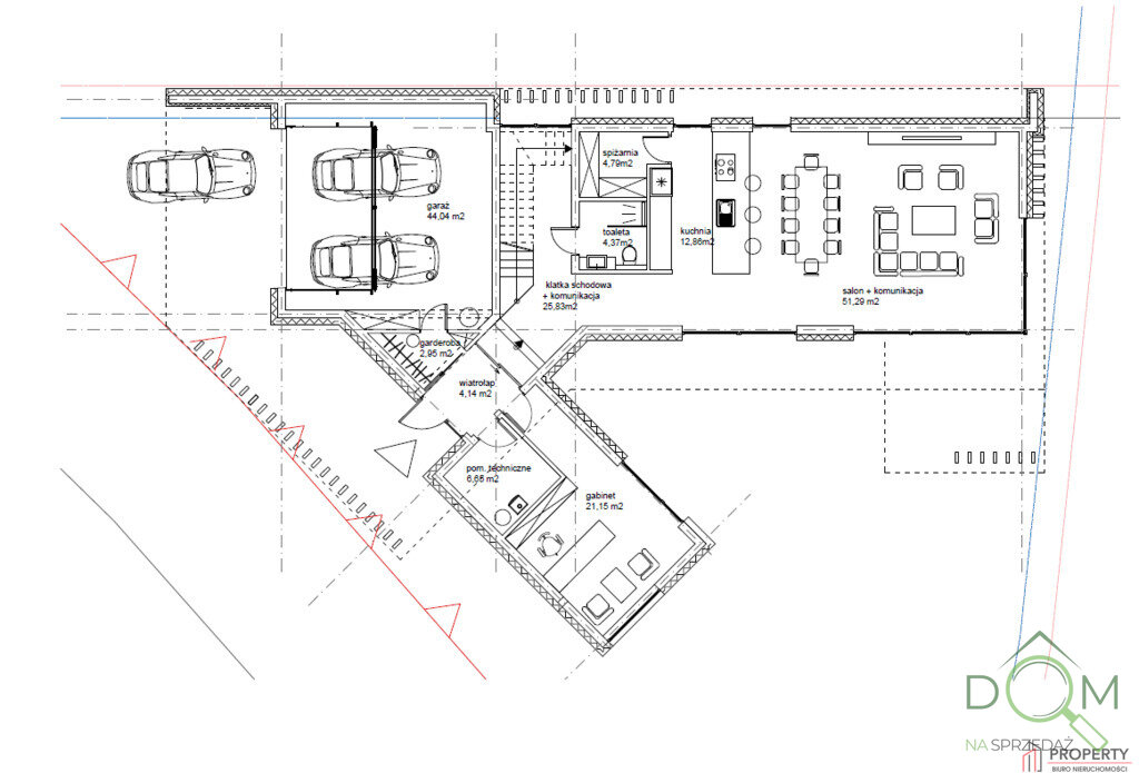
Układ pomieszczeń
Parter garaż: 44,04 m² (komfortowy, z miejscem również na strefę gospodarczą)
klatka schodowa + komunikacja: 25,83 m²
spiżarnia: 4,79 m²
toaleta: 4,37 m²
kuchnia: 12,86 m²
salon + komunikacja: 51,29 m² (reprezentacyjna strefa dzienna — idealna pod duże przeszklenia i wyjście na taras)
garderoba: 2,95 m²
wiatrołap: 4,14 m²
pomieszczenie techniczne: 6,65 m²
gabinet: 21,15 m² (świetny na biuro, bibliotekę lub pokój gościnny)
Piętro komunikacja: 13,57 m²
pralnia: 3,56 m²
łazienka: 10,66 m²
pokój: 14,33 m²
pokój: 14,33 m²
garderoba: 5,92 m²
WC: 5,21 m²
sypialnia: 15,37 m²
Co wyróżnia tę nieruchomość indywidualny projekt – dom o unikalnej architekturze, a nie powtarzalna „gotowa” bryła
płaski dach i nowoczesna forma nadająca rezydencjonalny charakter
duże przeszklenia – światło, przestrzeń i efektowna strefa dzienna
duży garaż 44 m² oraz funkcjonalny rozkład z gabinetem na parterze
pełne media i wygodny dojazd – blisko A4 (Dębica Zachód)
możliwość zmian na aktualnym etapie budowy
×
Napisz do
właściciela nieruchomości
Wypełnij formularz poniżej, a
Łukasz Ślusarczyk
otrzyma Twoją wiadomość
✕
Budujmy tę stronę razem. Twoja opinia jest dla nas ważna.
Wypełnij ankietę
Wybierz sposób wyszukiwania
Rysowanie na mapie
Narysuj obszar na mapie, w którym chcesz szukać nieruchomości
Szukanie w promieniu
Szukaj w określonym promieniu od wskazanego adresu
Szukanie po adresie
Wpisz nazwę miejscowości, dzielnicy lub ulicy
Szukanie na mapie
Przeglądaj mapę z wyświetlonymi ofertami nieruchomości
🍪 Zarządzanie plikami cookies
Ta strona używa plików cookies w celu zapewnienia prawidłowego działania serwisu, analizy ruchu i personalizacji treści.
Możesz zarządzać swoimi preferencjami lub zaakceptować wszystkie cookies.
Dowiedz się więcej w Polityce Prywatności.