Przedstawiamy wyjątkową ofertę sprzedaży działki budowlanej z gotowym pozwoleniem na budowę, położonej w malowniczej miejscowości Leńce, zaledwie 200 m od rzeki Supraśl. To idealne miejsce dla osób ceniących bliskość natury, ciszę oraz komfortowy dojazd do miasta.
Parametry techniczne:Lokalizacja: Leńce, nad rzeką Supraśl
Powierzchnia działki: 1188 m2
Przeznaczenie: zabudowa mieszkaniowa jednorodzinna
Dostępność mediów: linia energetyczna przy działce
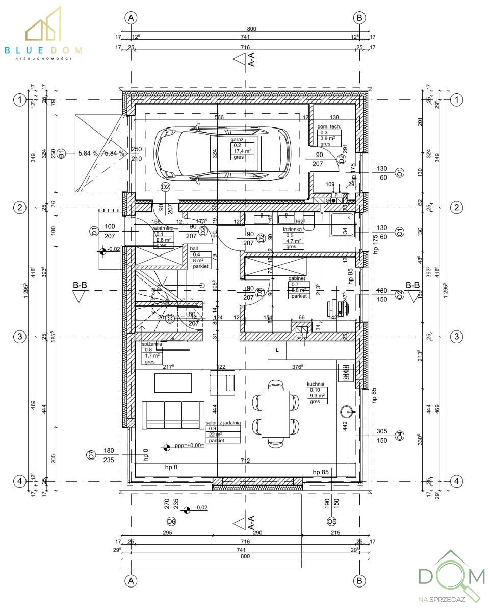
Projekt domu:
-Powierzchnia użytkowa: 155 m2
-Układ pomieszczeń:
-4 sypialnie na piętrze
-Przestronny salon na parterze
-Garaż w bryle budynku
Warunki zabudowy:Powierzchnia zabudowy: do 12% terenu inwestycji
Szerokość elewacji frontowej: 11,3 m
Maksymalna liczba kondygnacji: 2 naziemne
Rodzaj dachu: dwuspadowy, wielospadowy lub naczółkowy
Opis lokalizacji i otoczenia:
Działka położona jest w otoczeniu nowo powstającej zabudowy mieszkaniowej, co gwarantuje przyszłym właścicielom komfort i sąsiedztwo domów jednorodzinnych. Dzięki bliskości rzeki Supraśl, miejsce to stanowi idealną przestrzeń do relaksu i aktywnego spędzania czasu na łonie natury.
Doskonała lokalizacja zapewnia szybki dojazd do Białegostoku - zaledwie 10 minut jazdy samochodem. To świetna propozycja dla osób poszukujących spokojnej okolicy z dogodnym dostępem do miejskiej infrastruktury.
Możliwości zagospodarowania działki:
Działka oferuje szeroki wachlarz możliwości aranżacyjnych. Dzięki bliskości rzeki idealnie sprawdzi się jako miejsce na budowę domu z dodatkowymi udogodnieniami, takimi jak sauna, co dodatkowo podniesie komfort codziennego życia.
Serdecznie zapraszamy do kontaktu w celu uzyskania dodatkowych informacji oraz umówienia się na prezentację nieruchomości
Bluedom Nieruchomości
:: Oferta wysłana z programu mediaRent (media-rent.eu) ::
×
Napisz do
właściciela nieruchomości
Wypełnij formularz poniżej, a
Piotr Szarkowski
otrzyma Twoją wiadomość
✕
Budujmy tę stronę razem. Twoja opinia jest dla nas ważna.
Wypełnij ankietę
Wybierz sposób wyszukiwania
Rysowanie na mapie
Narysuj obszar na mapie, w którym chcesz szukać nieruchomości
Szukanie w promieniu
Szukaj w określonym promieniu od wskazanego adresu
Szukanie po adresie
Wpisz nazwę miejscowości, dzielnicy lub ulicy
Szukanie na mapie
Przeglądaj mapę z wyświetlonymi ofertami nieruchomości
🍪 Zarządzanie plikami cookies
Ta strona używa plików cookies w celu zapewnienia prawidłowego działania serwisu, analizy ruchu i personalizacji treści.
Możesz zarządzać swoimi preferencjami lub zaakceptować wszystkie cookies.
Dowiedz się więcej w Polityce Prywatności.