DOSTĘPNE INNE LOKALE MIESZKALNE!!
Ofertą sprzedaży jest lokal mieszkalny znajdujący się na parterze Apartamentowca na Wólkach o pow. 60,21 m2. Na powierzchnię mieszkania składają się:
- komunikacja 7,17 m2
- łazienka 5,52 m2
- pokój z aneksem kuchennym 26,59 m2
- pokój 7,12 m2
- pokój 14,73 m2
Do mieszkania przynależne ogródki o 18,95 m2 + 89,46 m2.
Cena za lokal mieszkalny 627 193 zł brutto. Możliwość zakupu miejsca postojowego w garażu podziemnym, boksu garażowego oraz komórki lokatorskiej.
W celu zapoznania się z innymi ofertami lokali mieszkalnych zapraszamy do kontaktu oraz na naszą stronę internetową house.nieruchomości.pl.
Apartamentowiec na Wólkach to obiekt o nowoczesnej architekturze, przemyślanej funkcjonalności i optymalnej lokalizacji. Nieruchomość posiada 4 kondygnacje nadziemne, podziemny garaż oraz parking zewnętrzny. Na poszczególnych kondygnacjach z myślą o zróżnicowanych potrzebach zaprojektowano 59 komfortowych apartamentów mieszkalnych. Parking zewnętrzny na posesji posiada 14 miejsc postojowych, natomiast w garażu podziemnym znajdują się 63 miejsca postojowe oraz 30 boksów. Dostęp do garażu zapewniony jest przez dwie wewnętrzne klatki schodowe oraz dwie windy. Dostępne komórki lokatorskie na każdej kondygnacji. Apartamenty ostatniej kondygnacji posiadają przestronne tarasy widokowe, z których rozciąga się panorama na piękny Beskid Wyspowy. Mieszkania znajdujące się na parterze wyposażone są w ogródki o różnych powierzchniach, natomiast na kolejnych kondygnacjach w balkony z widokiem na przyjemną okolicę. Atutem jest również dobre nasłonecznienie mieszkań.
Zalety inwestycji:
Optymalna lokalizacja: bliskość Centrum, sklepów, usług, szkół, przedszkoli, komunikacji miejskiej.
Sport i rekreacja: liczne tereny rekreacyjne i sportowe w pobliżu: Park Strzelecki, trasa rowerowa Velo Dunajec, korty tenisowe, place zabaw, siłownie zewnętrzne, boisko piłkarskie, tężnia solankowa, Kocie Planty.
Przyjazne otoczenie: cicha i bezpieczna okolica oddalona od ruchliwych ciągów komunikacyjnych, zieleń, mała intensywność sąsiedniej zabudowy (jednorodzinna).
Wysoki standard: nowoczesne architektura, wysokiej jakości materiały wykończeniowe, przestronne tarasy, balkony, ogródki, optymalne nasłonecznienie mieszkań.
Ekologiczne, inteligentne rozwiązania: energooszczędne oświetlenie LED w częściach wspólnych, wykorzystanie odnawialnych źródeł energii, wysoka efektywność energetyczna, system kontroli dostępu na teren osiedla, do budynku oraz do garażu.
Bezpieczny parking: bezpieczne miejsca postojowe o wskaźniku 1,3 na posesji oraz na parkingu podziemnym.
Ogrzewanie oraz ciepła woda dostarczane z MPEC.
Ceny lokali mieszkalnych od 9 500 zł - 11 200 zł za m2 netto + VAT
Miejsce postojowe 60 000 zł netto + VAT 23%
Boks garażowy 10 000 zł netto + VAT 23%
Komórka lokatorska na piętrach 20 000 zł netto + VAT 8%
Planowane zakończenie inwestycji 31.10.2026 r., oddanie lokali mieszkalnych 30.11.2026 r.
Dostępne lokale mieszkalne:
PARTER:
M1 - 27,88 m2 - komunikacja, łazienka, pokój z aneksem kuchennym + ogród 25,80 m2 - cena 301 104 zł brutto
M2 - 48,73 m2 - komunikacja, łazienka, pokój z aneksem kuchennym, pokój + ogród 40,48 m2 - cena 499 969 zł brutto
M3a - 29,98 m2 - komunikacja, łazienka, pokój, pokój z aneksem kuchennym + ogród 32,56 m2 - cena 345 000 zł brutto
M3b - 31,05 m2 - komunikacja, łazienka, pokój, pokój z aneksem kuchennym + ogród 35,6 m2 - cena 333 497 zł brutto
M8 - 42,56 m2 - komunikacja, pokój, pokój z aneksem kuchennym, łazienka + ogród 41,74 m2 - cena 509 203 zł brutto
M9 - 27,88 m2 - komunikacja, łazienka, pokój z aneksem kuchennym + ogród 25,80 m2 - cena 301 104 zł brutto
M12 - 61,13 m2 - komunikacja, 3 pokoje, pokój z aneksem kuchennym, łazienka + ogród A 18,95 m2, ogród B 89,46 m2 - cena 627 193 zł brutto
M14 - 59,47 m2 - komunikacja, łazienka, przedpokój, 2 pokoje, pokój z aneksem kuchennym + ogród 26 m2 - cena 610 162 zł brutto
M15 - 61,19 m2 - komunikacja, łazienka, pokój z aneksem kuchennym, 3 pokoje + ogród 89,47 m2 - REZERWACJA
M16 - 49,55 m2 - komunikacja, 2 pokoje, pokój z aneksem kuchennym, łazienka + ogród 41,78 m2 - cena 508 383 zł brutto
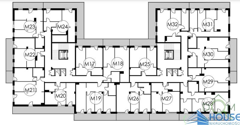
PIĘTRO I:
M18 - 51,12 m2 - komunikacja, łazienka, pokój z aneksem kuchennym, pokój + balkon 10 m2 - cena 524 491 zł brutto
M23 - 47,34 m2 - komunikacja, łazienka, 2 pokoje, pokój z aneksem kuchennym + balkon 10,01 m2 - cena 485 708 zł brutto
M31 - 61,19 m2 - komunikacja, łazienka, pokój z aneksem kuchennym, 3 pokoje + balkon 13,48 m2 - cena 627 809 zł brutto - REZERWACJA
PIĘTRO II:
M34 - 48,73 m2 - komunikacja, łazienka, pokój z aneksem kuchennym, pokój + balkon 10 m2 - cena 499 969 zł brutto
M35a - 29,98 m2 - komunikacja, łazienka, pokój z aneksem kuchennym + balkon 7,67 m2 - cena 345 400 zł brutto
M35b - 31,05 m2 - komunikacja, łazienka, pokój z aneksem kuchennym + balkon 8,38 m2 - cena 333 497 zł brutto
M37 - 59,15 m2 - komunikacja, łazienka, 2 pokoje, pokój z aneksem kuchennym + balkon A 4,5 m2, balkon B 13,24 m2 - cena 606 879 zł brutto
M39 - 47,34 m2 - komunikacja, łazienka, 2 pokoje, pokój z anksem kuchennym + balkon 10,01 m2 - cena 485 708 zł brutto
M45 - 45,35 m2 - komunikacja, przedpokój, łazienka, pokój z aneksem kuchennym, pokój + balkon 4,5 m2 - cena 465 291 zł brutto
M47 - 62,02 m2 - komunikacja, łazienka, 3 pokoje, pokój z aneksem kuchennym + balkon 13,48 m2- cena 627 809 zł brutto
PIĘTRO III:
M54 - 40,20 m2 - komunikacja, łazienka, pokój z aneksem kuchennym, pokój + balkon 9,66 m2 - cena 909 720 zł brutto RZERWACJA!!
M55 - 53,70 m2 - komunikacja, łazienka, pokój z aneksem kuchennym, 2 pokoje + balkon 13,13 m2 - cena 788 480 zł brutto
Agent prowadzący:
Paulina tel.: 531 159 873
Beata tel.: 533 200 121
Kontakt:
Paulina Maciuszek-Kos
tel: 531159873
paulina.house@wp.pl
nr licencji pośrednika odpowiedzialnego: 22548
Kontakt do biura:
HOUSE Nieruchomości Paulina Maciuszek-Kos
531159873
house.nieruchomosci@wp.pl
Numer licencji pośrednika odpowiedzialnego zawodowo: 22548
Art. 179b. z dnia 20 lipca 2018 r Ustawy o obrocie nieruchomościami wniósł zmiany w ustawie:
Pośrednictwo w obrocie nieruchomościami polega na odpłatnym wykonywaniu czynności zmierzających do zawarcia przez inne osoby umów:
1) nabycia lub zbycia praw do nieruchomości;
2) nabycia lub zbycia spółdzielczego własnościowego prawa do lokalu;
3) najmu lub dzierżawy nieruchomości lub ich części;
4) innych niż określone w pkt 1–3, których przedmiotem są prawa do nieruchomości lub ich części.
5) sposób ustalenia lub wysokość wynagrodzenia za czynności pośrednictwa w obrocie nieruchomościami określa umowa pośrednictwa zawierana z osobą zbywającą/nabywcą. W razie nieokreślenia wynagrodzenia w umowie, przysługuje wynagrodzenie zwyczajowo przyjęte w danych stosunkach zawarte w Ustawie o obrocie nieruchomościami.
Wszelkie prawa zastrzeżone. Kopiowanie, rozpowszechnianie oraz korzystanie z niniejszych materiałów w jakikolwiek inny sposób wykraczający poza dozwolony użytek określony przepisami ustawy z 4 lutego 1994 r. o prawie autorskim i prawach pokrewnych (Dz. U. 1994, nr 24 poz. 83 z późn. zm.) bez pisemnej zgody lub podmiotów współpracujących jest zabronione i może stanowić podstawę odpowiedzialności cywilnej oraz karnej. Ponadto niniejsze materiały stanowią tajemnicę przedsiębiorstwa lub podmiotów współpracujących w rozumieniu ustawy z dnia 16 kwietnia 1993 r. o zwalczaniu nieuczciwej konkurencji (Dz. U. z 2003 r., Nr 153, poz. 1503 z późn. zm.). Niniejsze ogłoszenie nie stanowi oferty w rozumieniu Kodeksu Cywilnego, lecz ma charakter informacyjny.
Treść niniejszego ogłoszenia nie stanowi oferty handlowej w rozumieniu Kodeksu Cywilnego, a dane w niej zawarte mają jedynie charakter informacyjny i mogą ulec zmianie za co biuro nie ponosi odpowiedzialności.
×
Napisz do
właściciela nieruchomości
Wypełnij formularz poniżej, a
Paulina Maciuszek-Kos
otrzyma Twoją wiadomość
✕
Budujmy tę stronę razem. Twoja opinia jest dla nas ważna.
Wypełnij ankietę
Wybierz sposób wyszukiwania
Rysowanie na mapie
Narysuj obszar na mapie, w którym chcesz szukać nieruchomości
Szukanie w promieniu
Szukaj w określonym promieniu od wskazanego adresu
Szukanie po adresie
Wpisz nazwę miejscowości, dzielnicy lub ulicy
Szukanie na mapie
Przeglądaj mapę z wyświetlonymi ofertami nieruchomości
🍪 Zarządzanie plikami cookies
Ta strona używa plików cookies w celu zapewnienia prawidłowego działania serwisu, analizy ruchu i personalizacji treści.
Możesz zarządzać swoimi preferencjami lub zaakceptować wszystkie cookies.
Dowiedz się więcej w Polityce Prywatności.