Dom

funkcjonalny rozkład-4 duże sypialnie

location icon

Dokładny adres ukryty

Dodano: 05 marca 2026

1 299 000 zł

Beata Smuga

Na portalu od: 25 stycznia 2026

Szczegóły Nieruchomości

Powierzchnia domu: 175,00 m2

Powierzchnia działki: 40,00 m2

Typ domu: Inny

Rok budowy: 2025

Stan techniczny: Brak danych

Klasa energetyczna: Brak

Liczba pokoi: 5 pokojów

Liczba łazienek: 2 łazienki

Parking:

Ogrzewanie: Gazowe

Piwnica: Nie

Poddasze: Nie

Taras: Tak

Balkon: Tak

Ogród: Nie

Ogrodzenie: Nie

Klimatyzacja: Nie

*RYNEK PIERWOTNY, BRAK PROWIZJI, BRAK PODATKU PCC
Pragniesz zamieszkać w spokojnej okolicy, z dala od miejskiego zgiełku, a jednocześnie mieć łatwy dostęp do Warszawy? Ta oferta jest właśnie dla Ciebie!

Bezczynszowy, trzypoziomowy segment środkowy o powierzchni 175m2, zlokalizowany w malowniczej dzielnicy Wesoła, w części Stara Miłosna. Ta lokalizacja zapewni Ci idealną równowagę między bliskością natury a dogodnym dojazdem do centrum miasta. Odległość od samego serca Warszawy wynosi zaledwie 16,5 km w linii prostej, co sprawia, że będziesz mógł cieszyć się urokami spokojnego otoczenia, nie rezygnując z wygody i dostępności.

Funkcjonalny rozkład, duże pokoje!

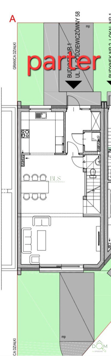
PARTER

- widna kuchnia z jadalnią otwarta na salon i wyjściem na taras
-toaleta
-pomieszczenie gospodarcze 

PIĘTRO

- dwie duże sypialnie, każda z nich z wyjściem na balkon
 -łazienka
-garderoba

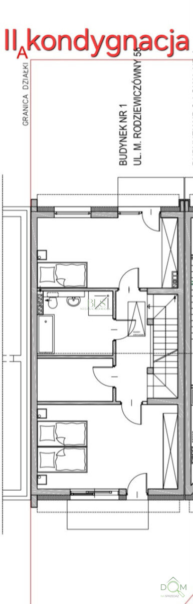
PODDASZE

- dwie duże sypialnie każda z nich wyjściem na balkon
- łazienka
- garderoba

Jasne i przestronne pomieszczenia pozwolą Ci na swobodną aranżację i stworzenie wymarzonego wnętrza. Dodatkowo, do mieszkania przynależą dwa miejsca postojowe.

Dojazd do Warszawy jest szybki i wygodny - w niedalekiej odległości znajdują się zarówno trasa S17, jak i autostrada A2, co zapewnia sprawną komunikację z centrum oraz innymi częściami miasta. Okolicę otaczają tereny leśne, idealne na spacery, jogging czy aktywny wypoczynek na świeżym powietrzu.

W najbliższej okolicy dostępne są sklepy, restauracje, kawiarnie oraz markety, dzięki czemu codzienne zakupy i spotkania z bliskimi można realizować szybko i wygodnie.

Nieruchomość położona jest przy spokojnej, kameralnej ulicy w otoczeniu niskiej zabudowy, co zapewnia przyjazny klimat oraz poczucie prywatności wśród zieleni.

To propozycja dla osób, które szukają równowagi między ciszą a dobrą komunikacją z miastem. Zapraszam do kontaktu i na prezentację - warto zobaczyć tę przestrzeń na żywo.

×

Napisz do właściciela nieruchomości

Wypełnij formularz poniżej, a Beata Smuga otrzyma Twoją wiadomość

0/5000 znaków