Dom

Dom w cenie apartamentu osiedle Bugaj

location icon

Dokładny adres ukryty

Dodano: 23 marca 2026

1 000 000 zł

Agnieszka Renner

Na portalu od: 06 marca 2026

Szczegóły Nieruchomości

Powierzchnia domu: 121,33 m2

Powierzchnia działki: 340,00 m2

Typ domu: Wolnostojący

Rok budowy: 2023

Stan techniczny: Brak danych

Klasa energetyczna: Brak

Liczba pokoi: 4 pokoje

Liczba łazienek: 1 łazienka

Parking:

Piwnica: Nie

Poddasze: Nie

Taras: Tak

Balkon: Nie

Ogród: Nie

Ogrodzenie: Tak

Klimatyzacja: Nie

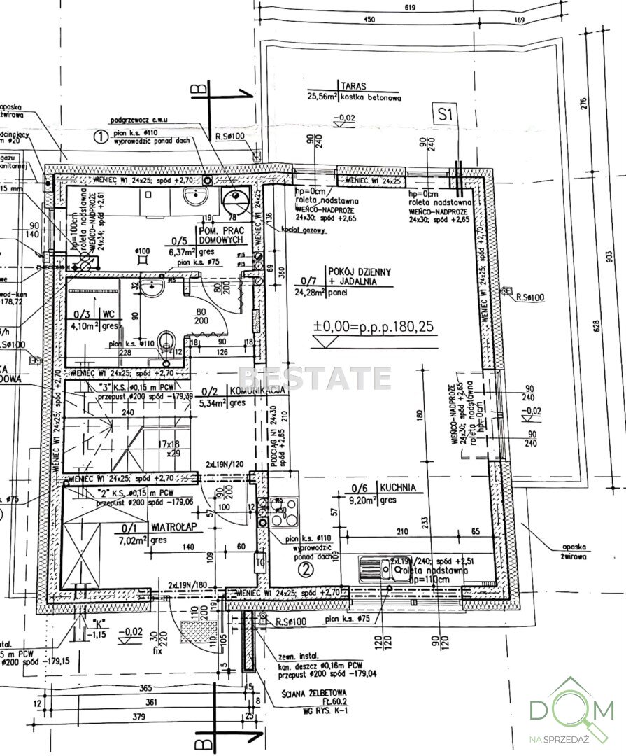
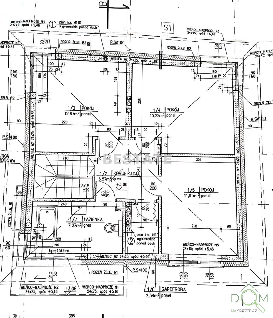
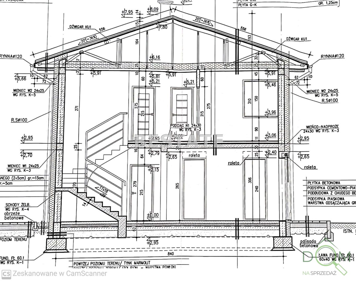
Dom w stanie surowym zamkniętym na osiedlu Bugaj BESTATE Nieruchomości Pabianice oferuje do sprzedaży nowy dom jednorodzinny o powierzchni 121,33 m.kw (użytkowa 93,76 m.kw) usytuowany w Pabianicach przy ul. Bugaj. Dom sukcesywnie doprowadzony będzie do stanu deweloperskiego, wybudowany z pustaka ceramicznego, strop - płyta żelbetowa monolityczna, dach kopertowy w konstrukcji drewnianej, wykończony blachodachówką, elewacja docieplona, rozprowadzona jest instalacja elektryczna i hydrauliczna. Działka o powierzchni ok. 340 m.kw. Dom wybudowany według indywidualnego projektu. Okna pcv z ekspozycją na wszystkie kierunki świata. Zestawienie powierzchni budynku: Przyziemie - wiatrołap 7,02 m.kw - komunikacja 5,34 m.kw - wc 4,10 m.kw - klatka schodowa 4,32 m.kw - pom. prac domowych 6,37 m.kw - kuchnia 9,20 m.kw - pokój dzienny 24,28 m.kw Piętro: - klatka schodowa 4,32 m.kw - komunikacja 6,57 m.kw - pokój 12,87 m.kw - pokój 15,22 m.kw - pokój 11,91 m.kw - garderoba 2,54 m.kw - łazienka 7,27 m.kw Media w działce: energia elektryczna, woda miejska, kanalizacja miejska, gaz Cena: 1 000 000 zł Zapewniamy kompleksową obsługę, najlepsze kredyty hipoteczne, bezpieczną transakcję. Jesteśmy z Tobą na każdym etapie zakupu, od prezentacji do przekazania kluczy. Stan prawny uregulowany, dokumenty dotyczące w/w oferty do wglądu. Kontakt: Barbara Kolasa BESTATE Nieruchomości tel: 692 400 228 e-mail: bkolasa@bestate.com.pl Nr licencji osoby odpowiedzialnej zawodowo: 22004 www.bestate.com.pl/pabianice Pośrednik odpowiedzialny zawodowo za wykonanie umowy pośrednictwa: (licencja nr: 22004) Oferta wysłana z systemu Galactica Virgo Powierzchnia balkonu: 25.56 m² Stolarka okienna: PCV
×

Napisz do właściciela nieruchomości

Wypełnij formularz poniżej, a Agnieszka Renner otrzyma Twoją wiadomość

0/5000 znaków