Przedstawiam unikalną nieruchomość , która zaspokoi najwyższe oczekiwania , niezależnie od planów jej przyszłego właściciela. Położony w malowniczej, leśnej scenerii w Jedliczu A , dom jest doskonałą propozycją na luksusową, rodzinną rezydencję , ale dzięki swojej lokalizacji i układzie stwarza też ogromny potencjał komercyjny, np. na kameralny hotel, pensjonat czy spa.
Położenie w otulinie lasu , w połączeniu z bliskością stacji Łódzkiej Kolei Aglomeracyjnej (ŁKA) , do której dojście zajmuje zaledwie 9 minut pieszo , to idealne rozwiązanie. Zapewnia ciszę i spokój blisko natury , jednocześnie gwarantując doskonały dojazd do miejskiej infrastruktury, co jest kluczowe zarówno dla mieszkańców, jak i przyszłych gości.
Przestrzeń i nowoczesność
Ten dom to prawdziwa gratka dla poszukujących przestrzeni i funkcjonalnych rozwiązań . Zaprojektowany wg indywidualnego projektu , z dbałością o każdy detal , oferuje i mponującą powierzchnię użytkową 351,73 m² bez podpiwniczenia i garażu. Zbudowany w 2021 roku w tradycyjnej technologii murowanej, z planowanym ociepleniem styropianem, jest przygotowany pod nowoczesne systemy grzewcze i wentylacyjne, co zapewnia komfort i niskie koszty eksploatacji.
Absolutnie wyróżniającym aspektem domu są kręcone schody wykonane z żelbetonu, które stanowią nie tylko funkcjonalny element, ale i centralny punkt estetyczny wnętrza . Ich konstrukcja pozwala na dowolne wykończenie, np. pokrycie drewnem, kamieniem lub pozostawienie w surowym, industrialnym stylu , idealnie dopasowanym do Twojej wizji.
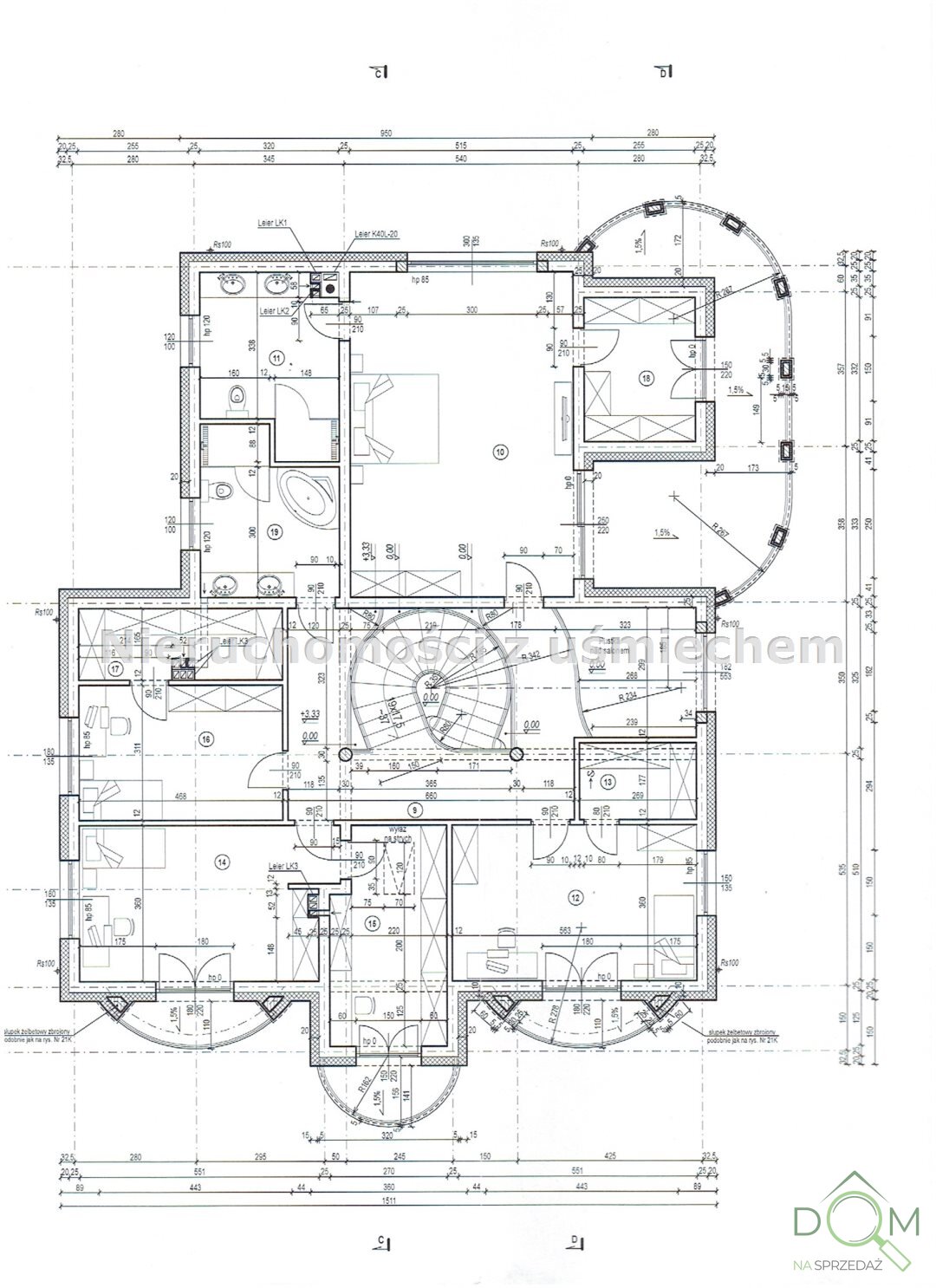
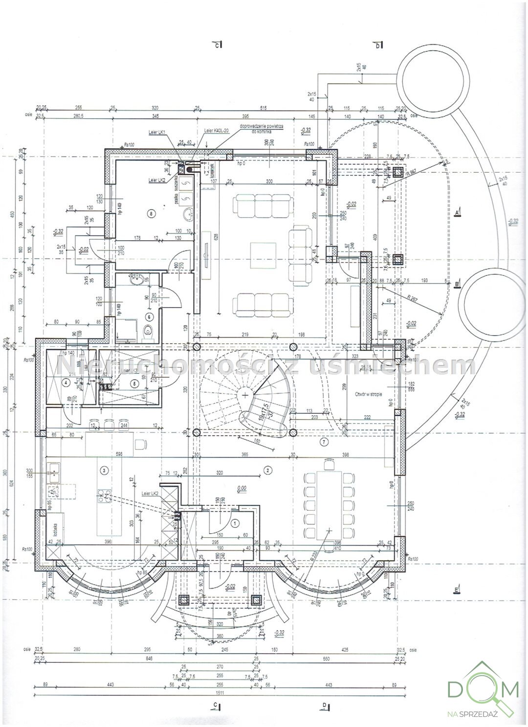
Wejście do domu znajduje się od strony wschodniej, a wnętrze kryje w sobie nowoczesne udogodnienia . Parter zaplanowano jako otwartą przestrzeń o imponującej powierzchni 189 m², co tworzy wyjątkowo duży hall wejściowy, integrujący kuchnię, jadalnię i przestronny salon. Na tym poziomie znajdują się również praktyczne pomieszczenia, takie jak spiżarnia, garderoba, łazienka oraz pomieszczenie techniczne z pralnią.
Piętro to strefa prywatna , idealnie rozplanowana dla komfortu mieszkańców . Znajdują się tu trzy sypialnie o powierzchniach około 20 m², 20 m² oraz 14 m² , każda z oddzielną garderobą . Do dyspozycji jest również osobna łazienka . Prawdziwą perełką jest jednak master bedroom o powierzchni 38,6 m² z własną garderobą o powierzchni 5 m², łazienką o powierzchni 12 m² oraz tarasem , który stwarza idealne miejsce do relaksu na świeżym powietrzu .
Dom jest w pełni przygotowany pod ogrzewanie podłogowe oraz montaż pompy ciepła . W pełni wykonane instalacje: elektryczna i hydrauliczna , a także r ozprowadzona klimatyzacja w każdym pomieszczeniu oraz rekuperacja zapewniają najwyższy komfort . Dodatkowo, wszystkie okna w domu mają wbudowane czujki alarmu . Nieruchomość posiada również własną ekologiczną oczyszczalnię ścieków oraz system nawodnienia działki.
Solidna konstrukcja i gotowe wykończenie zewnętrzne
Budynek jest w stanie surowym zamkniętym , co oznacza, że prace konstrukcyjne są już zakończone . Dach pokryty czarną, ceramiczną dachówką na wielospadowym dachu o kącie nachylenia 25 stopni to trwałe i estetyczne rozwiązanie . Dom posadowiony jest na dwóch połączonych działkach , co daje łącznie niespotykaną w tej okolicy powierzchnię 2077 m² . Tak duża przestrzeń g warantuje prywatność i pozwala na dowolne zagospodarowanie ogrodu .
________________________________________
Kluczowe informacje:
• Powierzchnia łącznych działek: 2077 m²
• Powierzchnia użytkowa domu: 351,73 m²
• Układ: Parter + Piętro + Poddasze nieużytkowe
• Parter: Otwarta przestrzeń (189 m²) z hall wejściowym, kuchnią, jadalnią i salonem, spiżarnia, garderoba, łazienka, pomieszczenie techniczne z pralnią
• Piętro: 3 sypialnie z oddzielnymi garderobami (ok. 20 m², 20 m², 14 m²), łazienka. Master bedroom (38,6 m²) z garderobą (5 m²), łazienką (12 m²) i tarasem.
• Rok budowy: 2021
• Budowa: Indywidualny projekt, technologia tradycyjna murowana, bez garażu i podpiwniczenia
• Instalacje: Pełna instalacja elektryczna, hydrauliczna, klimatyzacja, rekuperacja, wyjście na kominek
• Ogrzewanie: Przygotowanie pod ogrzewanie podłogowe i pompę ciepła
• Okna: Wszystkie z wbudowanymi czujkami alarmowymi, 9 okien balkonowych.
• Dach: Czarna, ceramiczna dachówka, wielospadowy, kąt nachylenia 25 stopni
• Odprowadzenie ścieków: Ekologiczna oczyszczalnia
• Nawodnienie: Rozprowadzony system nawadniania działki
• Stan: Surowy zamknięty
• Dojazd: 9 minut pieszo do stacji ŁKA, 10 minut samochodem do centrum Zgierza i Aleksandrowa Ł, 30 minut do Łodzi.
• Potencjał: Idealny na dom rodzinny lub inwestycję (np. hotel, spa)
To gotowa nieruchomość, która czeka na wykończenie. Masz szansę stworzyć tu swoje wymarzone miejsce , bez konieczności przechodzenia przez najbardziej uciążliwy etap budowy.
Zapraszam do kontaktu w celu uzyskania dodatkowych informacji i umówienia się na prezentację!
Oferta wysłana z systemu Galactica Virgo
Stolarka okienna: PCV 3 szyby, ciepły montaż
×
Napisz do
właściciela nieruchomości
Wypełnij formularz poniżej, a
Małgorzata Koperska
otrzyma Twoją wiadomość
✕
Budujmy tę stronę razem. Twoja opinia jest dla nas ważna.
Wypełnij ankietę
Wybierz sposób wyszukiwania
Rysowanie na mapie
Narysuj obszar na mapie, w którym chcesz szukać nieruchomości
Szukanie w promieniu
Szukaj w określonym promieniu od wskazanego adresu
Szukanie po adresie
Wpisz nazwę miejscowości, dzielnicy lub ulicy
Szukanie na mapie
Przeglądaj mapę z wyświetlonymi ofertami nieruchomości
🍪 Zarządzanie plikami cookies
Ta strona używa plików cookies w celu zapewnienia prawidłowego działania serwisu, analizy ruchu i personalizacji treści.
Możesz zarządzać swoimi preferencjami lub zaakceptować wszystkie cookies.
Dowiedz się więcej w Polityce Prywatności.